
의왕 오전동의 재개발지역인 오전나구역의 의왕 센트라인 데시앙 아파트가 철거 중에 있습니다. 곧 아파트 분양을 할 예정이니 평면도를 참고하셔서 아파트 청약에 도전하시기 바랍니다.
오전나구역 아파트 배치도

배치도를 보시면 오전가구역은 현재 의왕더샵캐슬이 완공 후 입주한 상태입니다. 경수대로와 모락로를 끼고 있고, 26년에는 오전 역이 개통할 예정입니다.
주변 관련정보는 아래 링크를 참고해 보시면 좋습니다.
의왕 오전나구역 재개발 분양 및 투자분석
의왕 오전나구역 재개발이 곧 일반분양 할 예정입니다. 환경, 교통, 교육, 호재 상황들을 분석하였으며 주변 아파트의 가격 등을 같이 정리하였으니 이 글을 참고하셔서 현명한 투자 하시길 바
frankler.tistory.com
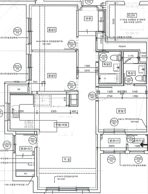
평면도 리뷰
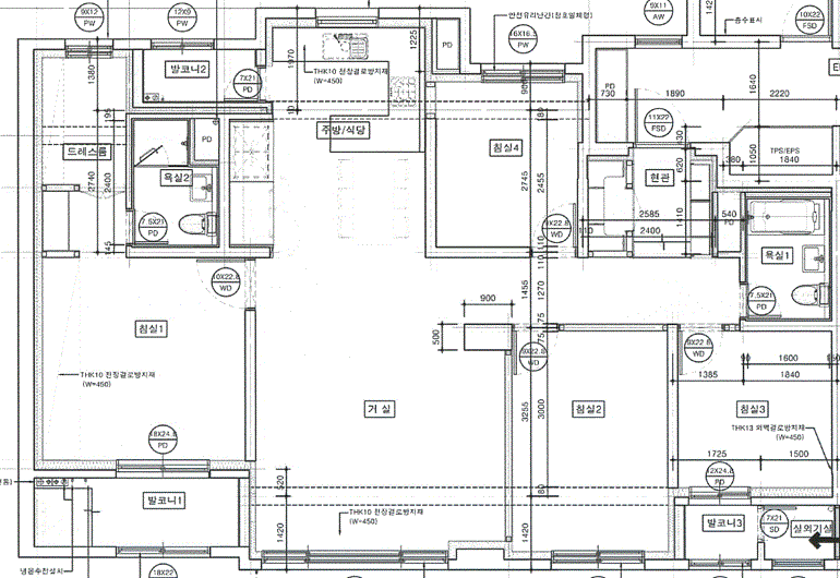
평면도 98

- 가장 큰 평 수은 98 타입입니다. 4 베이의 판상형 구조입니다. 현관 팬트리가 크게 있고, 전면부에 발코니가 안방과 침실 3에 2곳이 있습니다. 발코니는 요즘 없는 경우가 많은데 짐 보관하기에 없으면 불편한 점이 많습니다.
- 안방의 드레스룸은 창문을 달았고, 화장대와 안방 욕실이 전부 분리되어 있어서 환기에 신경을 쓴 평면이라고 생각합니다. 주방은 디귿자 형태로 안정적인 구조이며, 냉장고와 스탠드형 김치냉장고를 넣을 자리로 두 곳 마련해 두었네요. 냉장고를 한대 쓰시는 분들은 장을 만들어 넣어서 사용하시더라고요.
- 98 평면은 전형적이고 누구나 다 좋아할 만한 이상적인 구조입니다. 아무래도 분양가가 9억 원이 초과하지 않을까 싶습니다. 9억원이 초과하면 중도금 대출이 안되므로 쉽게 분양에 넣기 어려울 수 있어서 경쟁률이 낮아질 수 있을 것으로 보입니다.
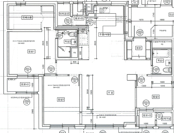
평면도 84A

- 전형적인 84A평면은 아닙니다. 판상형 구조의 4 베이라고 볼 수 있으나 조금 특이한 형태로 설계되었습니다. 안방의 드레스룸 안에 화장대가 위치한 스타일이고, 그 안에 가벽으로 드레스룸을 만들어 놓았네요. 다행히 욕실과의 간섭은 없어서 욕실의 물기가 드레스룸까지는 가지 않을 것 같습니다. 드레스룸에는 창문이 있어서 환기에 신경을 쓴 타입입니다. 주방은 발코니와 대피공간이 있어서 넑게 사용할 수 있는 구조입니다. 주방의 발코니는 음식물과 재활용 쓰레기 등으로 공간이 넓을수록 좋은 것 같습니다.
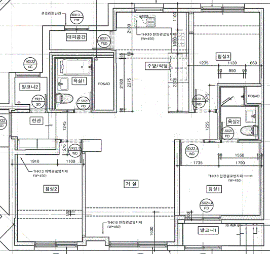
84B 평면도

- 독립적인 생활이 가능한 84B 평면입니다. 중고등학교 이상의 자녀를 둔 집이라면 좋아할 평면으로 생각됩니다. 아마 큰 자녀들은 현관에서 바로 방으로 박혀서 잘 안 나오다가 밥 먹을 때만 거실과 주방으로 나올 것 같은 평면인데요. 복도가 길지 않아서 낭비되는 면적이 적은 것으로 보입니다.
- 안방의 경우 드레스룸은 A형보다 좀 작은 형태고 창문은 없습니다. 욕실과 가까워서 환기에 주의해야 할 것으로 판단됩니다. 거실과 주방은 트여 있어서 넓고 환할 것으로 생각되지만 맞바람 통풍은 불가한 점이 있습니다. 거실도 창문이 1면으로만 되어있어서 약간 아쉬운 점은 있습니다.
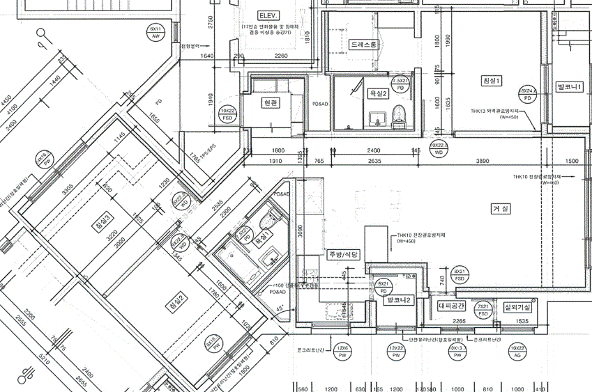
84C 평면도

- 제가 평면을 선택할 수 있다면 저는 84C를 A보다 선호합니다. 전형적인 4 베이의 단면은 아니지만 판상형 구조와 알파룸 때문입니다. A형에는 없는 알파룸이 있습니다. 서재로 만들어서 업무공간으로 만들면 좋을 것 같습니다.
- 주방은 식탁을 높으면 알파룸과의 간섭은 있을 것으로 보이나 벽으로 막아 두면 더 좁을 수 있기 때문에 지금 평면이 개인적으로 더 좋게 느껴집니다.
- 안방의 드레스룸은 A형보다는 작은 사이즈이고, 창문이 있습니다. 드레스룸에 창문이 없는 집도 많은데요. 드레스룸의 옷들을 보관하기에 창문이 있는 편이 훨씬 좋은 것 같습니다.
59A 평면도

- 59A평면부터는 3 베이입니다. 판상형 구조이고 가장 눈에 띄는 점은 주방의 식탁 자리기 넓은 것입니다. 25평형의 경우 식탁을 놓으면 동선에 간섭이 되거나 굉장히 비좁아지는 경우가 있는데 오전 나 구역의 경우 25평에 6인용 식탁도 가능할 것으로 보입니다. 안방에 드레스룸은 없어서 좀 아쉽습니다.
59B 평면도

- 59B 평면의 경우 주방 발코니의 동선이 애매한 점이 있습니다. 비형은 에이형보다 덜 선호하지만 이렇게 설계가 된 경우는 A형으로 수요가 많이 몰릴 수 있습니다. 주방에서 쓰레기를 버리거나 과일을 상온에 둘 때, 잠깐 음식을 식힐 때 등등 발코니를 사용하는 경우가 많습니다. 하지만 이렇게 설계가 되어 있는 경우 꽤 돌아가야 하는 동선입니다. 지금은 식탁이 없는 평면으로 보아도 돌아가야 하는데요. 식탁을 두면 더 돌아가야하는 단점이 있습니다. 거실에서도 거실 끝에 발코니 문이 있으므로 좀 불편한 점이 있을 수 있습니다.
- 장점이라고 생각되는 점은 방의 크기가 작은 것 없이 충분히 공간 가치를 할만한 크기입니다. 드레스룸은 A형처럼 없습니다.
37A B 평면도


- 저는 개인적으로 37 타입은 A형보다 B형을 더 좋아하는 타입입니다. B의 경우 주방과 침실의 구분이 명확하게 된 경우라서 더 선호합니다. 그리고 주방의 발코니가 있습니다. 요리를 꽤 하시는 분들의 발코니 장점은 정말 말로 다 못할 정도라고 생각합니다. 그래도 B형에서 알아야 할 점은 복도가 깁니다. 복도가 길 다는 것은 쓸모없는 공간이 차지하고 있기 때문에 짜임새 있는 구조는 아닙니다. 그래서 주방에 식탁을 둘 곳이 애매하게 보입니다.
- A형이 일반적인 형태이기 때문에 A형을 더 선호하는 경우가 많을 것으로 보입니다. 세탁기는 침실 앞에 발코니를 이용해야 할 것으로 보이고요, B형은 주방 옆에 둘 수 있습니다. B형은 발코니 3군데나 있어서 짐 보관에 더 유용할 것으로 생각됩니다.
- 오전 나구역은 역과 바로 붙어있는 단지고 경수대로를 끼고 있어서 인기가 많을 것으로 예상됩니다. 분양이 시작하기 전에 미리미리 관련 정보를 준비해서 좋은 결과 있으시길 바랍니다.
내손동 인덕원자이SK뷰 분양정보 알아보기
의왕시 인덕원자이SK뷰(내손다구역)의 재개발이 진행 중입니다. 인덕원자이SK뷰(내손다구역)는 일반분양 물량이 꽤 많기 때문에 미리미리 준비해 보는 게 좋을 텐데요. 의왕 인덕원자이SK뷰의 분
frankler.tistory.com
의왕 오전동 재건축아파트 및 오전역 교통 호재 분석
의왕시 오전동의 재건축 아파트(신안, 동백, 백합, 목련, 무궁화 아파트)의 진행 현황과 교통호재 사항들을 분석하였습니다. 주변 재개발 아파트와 같이 정리하였으니 이 글을 참고하셔서 현명
frankler.tistory.com
의왕 오전다구역 분양정보 및 투자분석
의왕시 오전다구역의 재개발이 진행 중입니다. 오전다구역의 분양내용 및 주거환경 등 투자정보를 분석하였으니 이 글을 참고하셔서 현명한 투자 하시길 바랍니다. 분양 정보 개요 사업명 : 의
frankler.tistory.com
'부동산정보 > 안양,의왕,광명' 카테고리의 다른 글
| 광명 아파트 분양정보 알아보기(철산주공 8,9단지) (0) | 2022.02.22 |
|---|---|
| 의왕 재개발 오전 다구역의 분양아파트 평면도 리뷰 (0) | 2022.02.13 |
| 평촌 자이아이파크 일반분양 경쟁률 및 당첨가점 리뷰 (0) | 2022.02.10 |
| 안양 어반포레자연 특별공급 경쟁률 및 평면도 리뷰 (0) | 2022.02.09 |
| 안양 어반포레 자연 아파트 분양 경쟁률 및 당첨가점 리뷰 (0) | 2022.02.08 |




